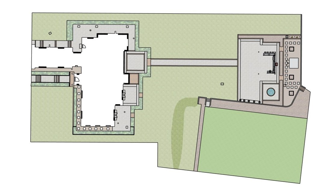
Kitchen & Hot Tub Garden

The client wanted to demolish an existing pool house with indoor swimming pool to make way for a new, contemporary outdoor kitchen with a premium, wood-fired hot tub. The new space had to link to the main house via a central pathway, created in the same hard landscaping materials used elsewhere in the large 8-acre garden. The new patio, built using a natural sandstone slab with clay paver detail, was designed to be large enough to accommodate a dedicated outdoor kitchen featuring a Big Green Egg ceramic BBQ, pizza oven, food prep worktop, and a peninsula bar with bar stools.
The new outdoor dining area benefits from a large, fully-featured, contemporary pergola, complete with built-in lighting, speakers, a louvered roof that can be opened and closed to suit the prevailing weather conditions, and dropdown screens that make the space usable year-round. To complete the outdoor living experience, alongside the dining area is a new above-ground, Swedish wood-fired hot tub, large enough for 8–10 people. The patio was made large enough to allow ample room for sitting and lounging around the hot tub.
A planting plan featuring structural pleached trees provides a sense of enclosure and effectively zones the outdoor dining and spa from the rest of the garden. Evergreen, shade-loving plants were incorporated below the BBQ worktops to provide a green accent against the black of the kitchen units and pergola. Year-round planting was used elsewhere to soften paving, while leaving a large expanse of lawn to allow a marquee to be erected for larger family gatherings and summer parties in the future.